St. Judes Road, Englefield Green, Egham, Surrey, TW20

  • £450,000
15 St. Judes Road Englefield GreenSurrey Egham TW20 0BY
To Buy Available
St. Judes Road, Englefield Green, Egham, Surrey, TW20
15 St. Judes Road Englefield GreenSurrey Egham TW20 0BY
  • £450,000

Details

Updated on April 27, 2026 at 7:39 am
  • Property ID: HZ10729448
  • Price: £450,000
  • Bedrooms: 2
  • Bathroom: 1
  • Property Type: House - Terraced
  • Property Status: To Buy

Description

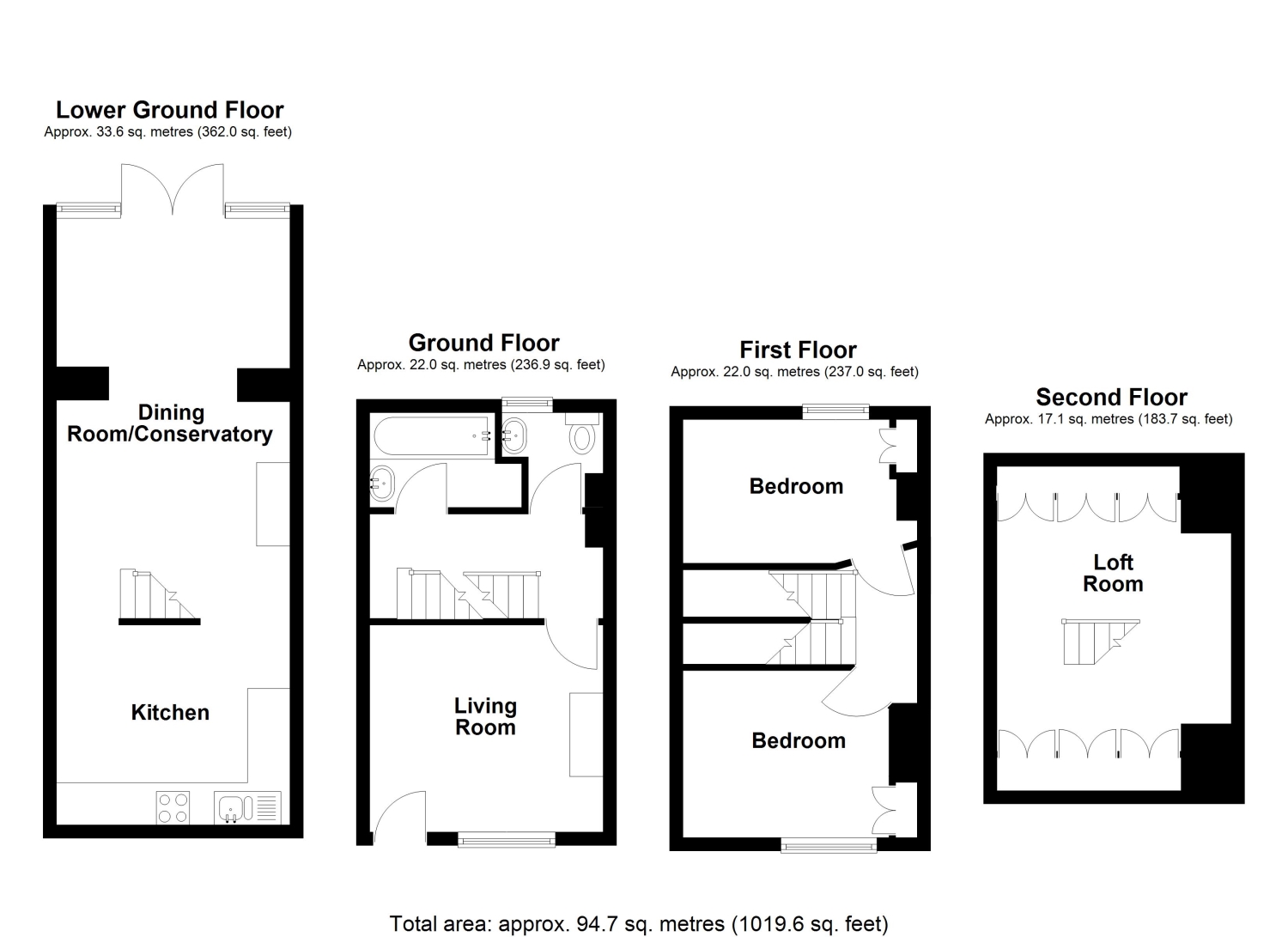
A truly gorgeous two bedroom cottage consisting of four levels of accommodation. There is a lower ground kitchen with dining room and conservatory onto a 100ft rear garden, lounge and bathroom are on the ground floor with separate toilet. Two double bedrooms on the first floor and finally a fully functional loft room. Located close to local shops and Village Green with excellent public transport and access to motorways. 

Council Tax Band: D

Property Documents

Brochure
epc-graph-10729448

Floor Plans

image

Description:

image

Description:

  • Address 15 St. Judes Road Englefield GreenSurrey Egham TW20 0BY
  • Town Egham
  • Zip/Postal Code TW20 0BY

Contact Information

View Listings
Nevin & Wells
  • Nevin & Wells

Enquire About This Property

Overview

Property ID: HZ10729448
  • House - Terraced
  • Property Type
  • 2
  • Bedrooms
  • 1
  • Bathroom

Similar Listings

Compare listings

Compare
Nevin & Wells
  • Nevin & Wells